4628 62 Street Red Deer, Alberta T4N 6T3

11,206 sqft

$8 / ft2

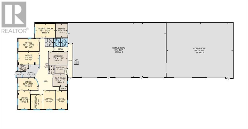
Located in Riverside Light Industrial Park, this space offers 11,206 SF with a reception area/lobby, six offices (some with windows), two meeting rooms/boardrooms, a file room, multiple storage rooms, and two washrooms. The large shop has 20' ceilings and is separated into two areas with (5) 14' overhead doors. The yard is fenced and graveled with paved parking available directly in front. Additional Rent is $4.06 for the 2025 budget year. (id:57594)

Property Details

MLS® Number A2216425
Property Type Industrial
Community Name Riverside Light Industrial Park
Plan 2420745

Building

Constructed Date 1992
Size Exterior 11206 Sqft
Size Interior 11,206 Sqft
Total Finished Area 11206 Sqft

Land

Acreage No
Size Total Text Unknown
Zoning Description I-1

https://www.realtor.ca/real-estate/28240144/4628-62-street-red-deer-riverside-light-industrial-park

Your Favourites

 

No Favourites Found