5 Bedroom
3 Bathroom
1,482 ft2
None
Forced Air
$325,000
This two-story home in Stettler offers the best of both worlds: timeless character and modern construction. In 2018, the original structure was carefully removed from its foundation and a new basement was poured, creating a brand new home while preserving its story.Taken right down to the studs, this home was completely rebuilt—from the plumbing, electrical, and mechanical systems to the roof, kitchen, and every finish throughout—offering the peace of mind of new construction with the warmth of a classic design.With five bedrooms and two and a half baths, the layout is ideal for families. Upstairs are two comfortable bedrooms and a full bathroom, including a spacious primary bedroom with a walk-in closet. The main floor features a flex room that could serve as storage, a walk-in pantry, or a home office. The basement offers two good-sized bedrooms, a family recreation room, additional storage, and another full bathroom.The open-concept living and dining area feels both inviting and connected—perfect for everyday living and family gatherings. Outside, the partially fenced yard includes a dedicated dog run and a back deck, and all the homework has been done to add a garage if desired.Set just steps from the school and within easy walking distance of downtown amenities and restaurants, this is truly a one-of-a-kind Stettler home where modern comfort meets enduring charm. (id:57594)
Property Details
|
MLS® Number
|
A2266634 |
|
Property Type
|
Single Family |
|
Amenities Near By
|
Park, Recreation Nearby, Schools |
|
Features
|
Back Lane |
|
Parking Space Total
|
4 |
|
Plan
|
8061et |
|
Structure
|
Deck |
Building
|
Bathroom Total
|
3 |
|
Bedrooms Above Ground
|
3 |
|
Bedrooms Below Ground
|
2 |
|
Bedrooms Total
|
5 |
|
Appliances
|
Refrigerator, Dishwasher, Stove, Microwave, Window Coverings, Washer & Dryer |
|
Basement Development
|
Finished |
|
Basement Type
|
Full (finished) |
|
Constructed Date
|
2018 |
|
Construction Material
|
Wood Frame |
|
Construction Style Attachment
|
Detached |
|
Cooling Type
|
None |
|
Flooring Type
|
Carpeted, Hardwood, Vinyl Plank |
|
Foundation Type
|
Poured Concrete |
|
Half Bath Total
|
1 |
|
Heating Type
|
Forced Air |
|
Stories Total
|
2 |
|
Size Interior
|
1,482 Ft2 |
|
Total Finished Area
|
1482.3 Sqft |
|
Type
|
House |
Parking
Land
|
Acreage
|
No |
|
Fence Type
|
Partially Fenced |
|
Land Amenities
|
Park, Recreation Nearby, Schools |
|
Size Depth
|
39.49 M |
|
Size Frontage
|
15.24 M |
|
Size Irregular
|
6479.00 |
|
Size Total
|
6479 Sqft|4,051 - 7,250 Sqft |
|
Size Total Text
|
6479 Sqft|4,051 - 7,250 Sqft |
|
Zoning Description
|
R2 |
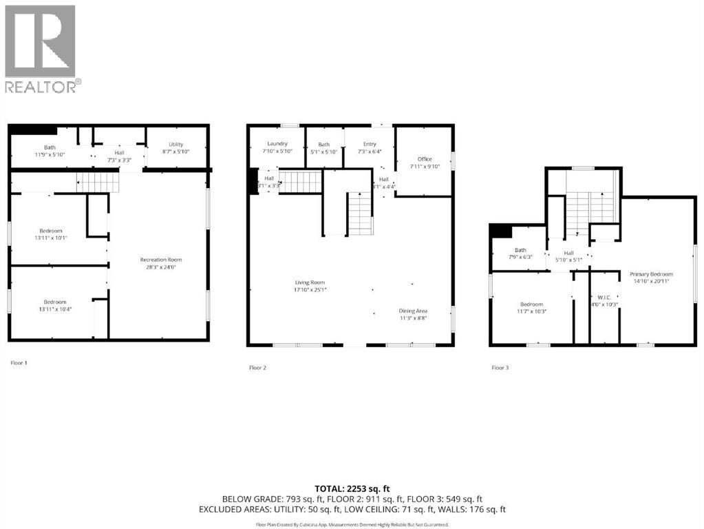
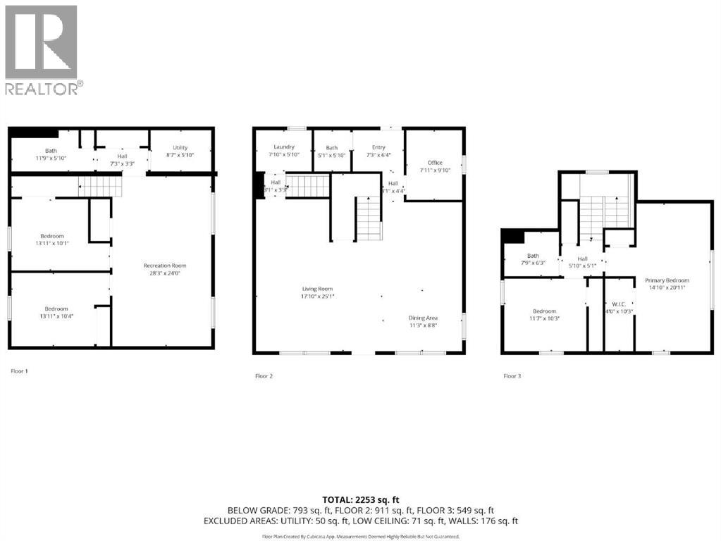
Rooms
| Level |
Type |
Length |
Width |
Dimensions |
|
Second Level |
Hall |
|
|
5.83 Ft x 5.08 Ft |
|
Second Level |
3pc Bathroom |
|
|
7.75 Ft x 6.25 Ft |
|
Second Level |
Bedroom |
|
|
11.58 Ft x 10.25 Ft |
|
Second Level |
Primary Bedroom |
|
|
14.83 Ft x 20.92 Ft |
|
Second Level |
Other |
|
|
4.00 Ft x 10.25 Ft |
|
Basement |
Hall |
|
|
7.25 Ft x 3.25 Ft |
|
Basement |
4pc Bathroom |
|
|
11.75 Ft x 5.83 Ft |
|
Basement |
Furnace |
|
|
8.58 Ft x 5.83 Ft |
|
Basement |
Bedroom |
|
|
13.92 Ft x 10.08 Ft |
|
Basement |
Bedroom |
|
|
13.92 Ft x 10.33 Ft |
|
Basement |
Recreational, Games Room |
|
|
28.25 Ft x 24.00 Ft |
|
Main Level |
Kitchen |
|
|
16.25 Ft x 8.67 Ft |
|
Main Level |
Dining Room |
|
|
11.25 Ft x 8.67 Ft |
|
Main Level |
Living Room |
|
|
25.08 Ft x 17.83 Ft |
|
Main Level |
Hall |
|
|
3.08 Ft x 3.25 Ft |
|
Main Level |
Laundry Room |
|
|
7.83 Ft x 5.83 Ft |
|
Main Level |
2pc Bathroom |
|
|
5.08 Ft x 5.83 Ft |
|
Main Level |
Other |
|
|
7.25 Ft x 6.33 Ft |
|
Main Level |
Bedroom |
|
|
7.92 Ft x 9.83 Ft |
|
Main Level |
Hall |
|
|
3.08 Ft x 4.33 Ft |
https://www.realtor.ca/real-estate/29031212/5013-57-street-stettler